Ações

Mudanças entre as edições de "KNTM3/1000"

De Kraus & Naimer

Linha 195: Linha 195:
 
&nbsp;&nbsp;&nbsp;&nbsp;&nbsp;&nbsp;&nbsp;&nbsp;&nbsp; Para ligação em 250V => chave com 3 polos com 2 em série no positivo e 1 no polo negativo<br>
 
&nbsp;&nbsp;&nbsp;&nbsp;&nbsp;&nbsp;&nbsp;&nbsp;&nbsp; Para ligação em 250V => chave com 3 polos com 2 em série no positivo e 1 no polo negativo<br>
 
&nbsp;&nbsp;&nbsp;&nbsp;&nbsp;&nbsp;&nbsp;&nbsp;&nbsp; Para ligação em 400V => chave com 4 polos com 3 em série no positivo e 1 no polo no paralelo<br>
 
&nbsp;&nbsp;&nbsp;&nbsp;&nbsp;&nbsp;&nbsp;&nbsp;&nbsp; Para ligação em 400V => chave com 4 polos com 3 em série no positivo e 1 no polo no paralelo<br>
 +
 +
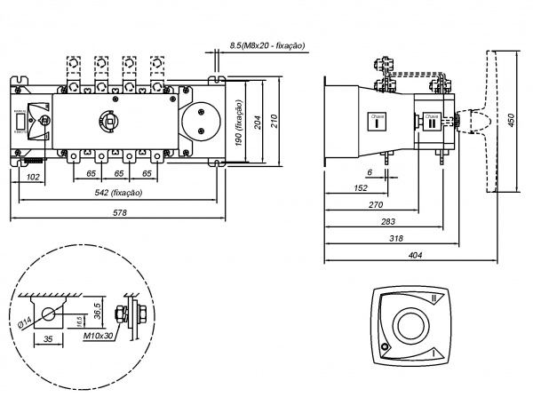
==Dimensões==
 +
'''Dimensões em mm'''
 +
 +
[[Arquivo: Dim_kntm3_1000.jpg|600px|]]

Edição das 15h24min de 7 de junho de 2013

Dados Elétricos

IEC 60947-3, EN 60947-3, VDE 0660 part 107:

Corrente nominal em regime contínuo Iu 1.000A
Corrente térmica convencional Ith 1.000A
Tensão nominal de operação Ue 690V
Tensão nominal de isolamento Ui 1.000V
Tensão nominal de impulso suportável Uimp 12kV
Corrente presumida de curto-circuito com fusível conectado em série Ip 1.000V

- para 50/60 Hz 690V (rms)
- máxima corrente In do fusível
- corrente de corte Ic
- integral de Joule I²t

50kA/100kA
1.000A/630A
70kA/65kA
4.200kA²s/3.200kA²s

Capacidade nominal de estabelecimento em curto-circuito (Icm) (pico) 76kA
Corrente nominal admissível de curta duração (Icw) (rms) 36kA/0,3s
Capacidade de operação em carga 415V 500V 690V

- corrente nominal de operação (le) em AC-21
- corrente nominal de operação (le) em AC-22
- corrente nominal de operação (le) em AC-23*
- potência nominal de operação (le) em AC-23

1.000A
1.000A
690A
425kW

1.000A
1.000A
575A
425kW

1.000A
1.000A
437A
425kW

Tensão aplicada, 60s 3.500V
Corrente nominal máxima de fusíveis de ação retardada In 1.000A
Durabilidade mecânica (manobras) 10.000
Temperatura ambiente permitida (-25 até +55)ºC
Torque requerido para manobra 35Nm
Grau de proteção IP20
Perda watt por polo com corrente de regime 47,5W
Seção dos condutores de conexão

- cabos com terminal
- barras
- torque no parafuso de conexão (+-10%)
- parafusos dos terminais (Sextavado)

(2x)240mm²
(2x)40x10mm
40Nm
M12x35

Contato auxiliar com 1 NA + 1 NF (acessório)**

- pode-se fixar até
- corrente de operação para

2A

Peso 33kg
Manobra de capacitores (somente para abertura)



418V

550V

726V

405kVAr
800A
530kVAr
800A
700kVAr
570A

Operação em corrente contínua*** 220V 250V 440V

- corrente operacional le em DC-21
- corrente operacional le em DC-22
- corrente operacional le em DC-23

1.250A
-
-

800
800
800

800A
800A
800A

∗ O teste de capacidade para operação em carga é realizado: no fechamento com 10 x Ie, na abertura com 8xIe, com fator de potência f.p. 0,35 e tensão 1,05xUe
∗∗ Sob consulta para utilização de mais contatos auxiliares
∗∗∗ Para ligação em 220V => chave com 4 polos com 2 a 2 em paralelo
          Para ligação em 250V => chave com 3 polos com 2 em série no positivo e 1 no polo negativo
          Para ligação em 400V => chave com 4 polos com 3 em série no positivo e 1 no polo no paralelo

Dimensões

Dimensões em mm

Dim kntm3 1000.jpg